ESC bezárás

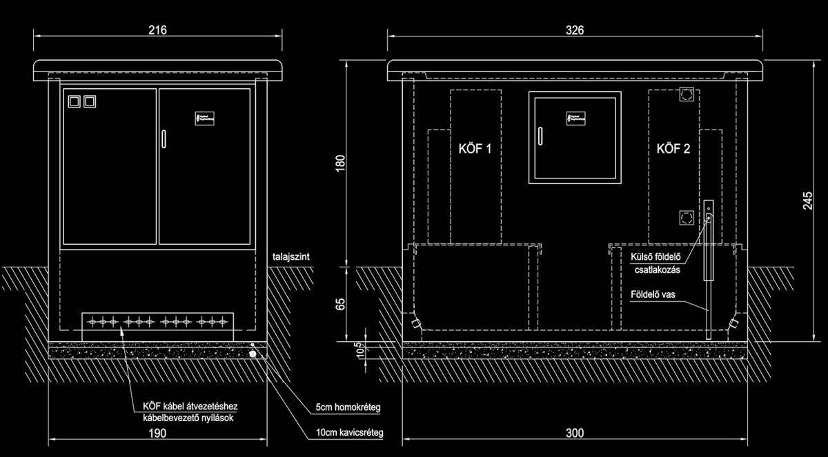
A Kaposvári Villamossági Gyár a betonházas transzformátorállomások háztípusainak felhasználásával korszerű, kisméretű, esztétikus megjelenésű kapcsolóállomás családot fejlesztett ki.
Vevőorientált konstrukciónkat többféle elrendezés változatban, igény szerinti színösszeállításban, különböző primer berendezés típusokkal, számos egyedi igény beépíthetőséggel gyártjuk vevőink igényei szerint.

Egyéb tulajdonságai:

Biztonsági szempontból:

  • MSZ EN 60271 szerint típusvizsgált berendezések,
  • ívkorlátozó rendszerek biztosítják az íválló kivitelű A és B megközelíthetőséget,
  • építészeti és tűzvédelmi minősítéssel rendelkezik (ÉMI)
  • a korszerű berendezések nagyfokú személyi és üzembiztonságot, továbbá kényelmes kezelést eredményeznek.
     

Gazdaságossági szempontból, mivel készre szerelten kerül kiszállításra:

  • gyorsan telepíthető (helyszíni feladat csupán a kábelek bekötése),
  • alapozást nem igényel, közvetlenül telepíthető,
  • természetes szellőzéssel rendelkezik,
  • a betonház 25-30 évig nem igényelnek karbantartást.
     

Környezetvédelemi szempontból:· 

  • esztétikus megjelenésű, 1,58 (ill. 2,38) m párkánymagasságával a környezetbe jól illeszkedik
  • zajszintje gyakorlatilag nem mérhető.
     

Minőség és minőségbiztosítási szempontból

  • vállalatunk ISO 9001 és ISO 14001 minőségbiztosítási rendszerrel rendelkezik,
  • minden kapcsolóállomást bevizsgálunk szállítás előtt.

KTW-K3

KTW-K4

KTW-K6

Letölthető fájlok, dokumentumok, műszaki rajzok

KTW-K7

KTW-K8D

Letölthető fájlok, dokumentumok, műszaki rajzok

KTW-KB4

Letölthető fájlok, dokumentumok, műszaki rajzok

KTW-KB4,5

KTW-KB5,5

Letölthető fájlok, dokumentumok, műszaki rajzok

KTW-KB6

Letölthető fájlok, dokumentumok, műszaki rajzok
© 2026. KVGY Kft., Minden jog fenntartva | Adatkezelés
Portal & Code: ThunderStudio